33交通+42++公路交通安全设施设计细则+JTG/T+D81-2006+勘误表.pdf

  • 文件大小: 1.55MB
  • 文件类型: pdf
  • 上传日期: 2025-08-21
  • 下载次数: 0

概要信息:

《公路交通安全设施设计细则》(JTG/T D81—2006)勘误表 
 
序号 页码 位 置 误 正 
1 8 倒数第 16 行 填土高度、 删去 
2 13 倒数第 5 行 采取加强措施 删去 
3 26 倒数第 1 行 按表 5.2.5 应按表 5.2.5 
4 43 第 7.2.2 条第(2)款最后一句 桥梁窄于路基段时 桥梁窄于路基段且宽度小于 6m 时 
5 43 第 7.2.2 条第(2)款最后一句 不划中心线 可不划中心线 
6 58 倒数 2、3 行 nB1、nB2 nB1、 nB2 
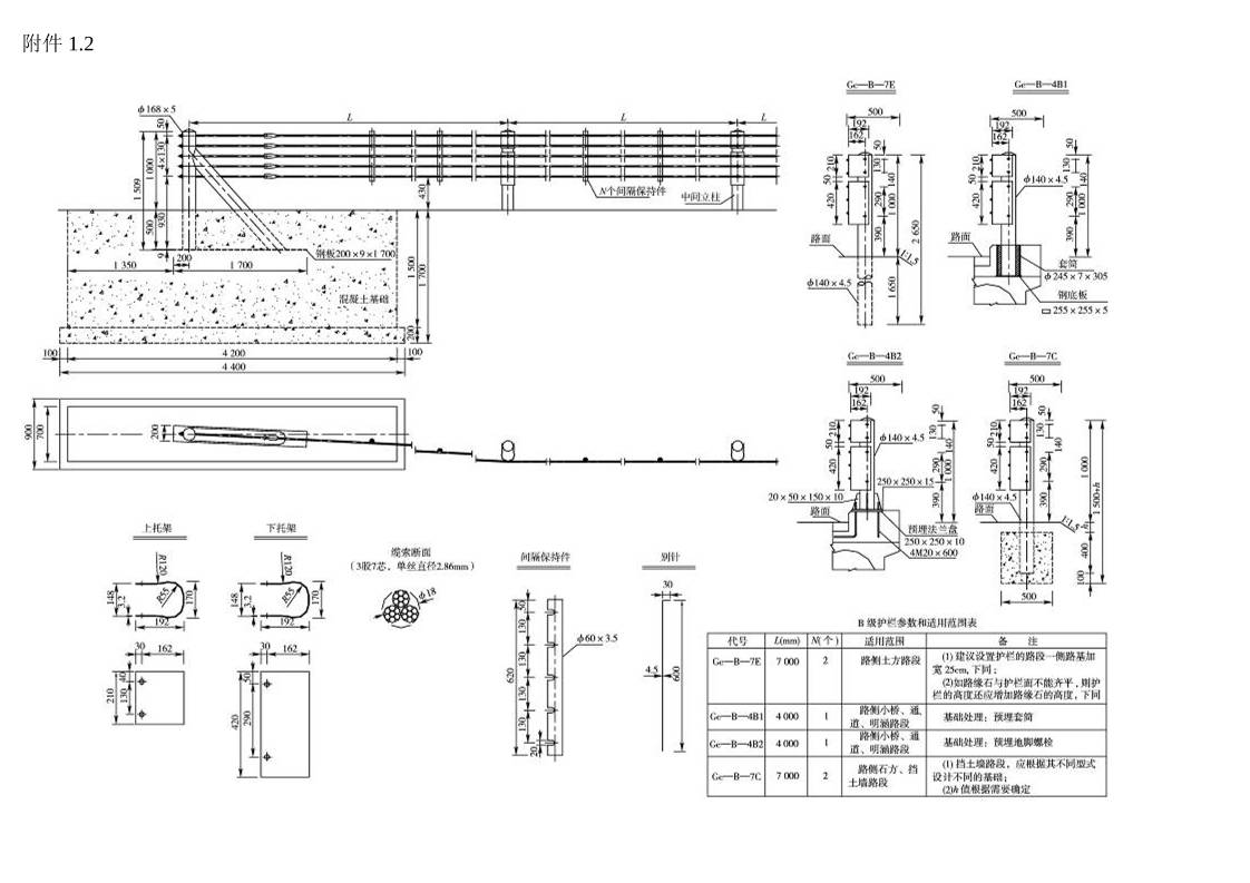
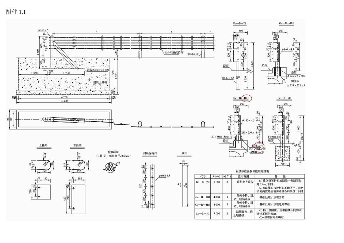
7 65 图 B.1 见附件 1.1 见附件 1.2 
8 66 图 B.2 见附件 2.1 见附件 2.2 
9 67 图 B.3 见附件 3.1 见附件 3.2 
10 72 图 C.4 见附件 4.1 见附件 4.2 
11 73 图 C.5 见附件 5.1 见附件 5.2 
12 74 图 C.6 见附件 6.1 见附件 6.2 
13 75 图 C.7 见附件 7.1 见附件 7.2 
14 77 图 C.9 见附件 8.1 见附件 8.2 
15 174 图 10-3 见附件 9.1 见附件 9.2 
16 175 图 10-5 见附件 10.1 见附件 10.2 
17 175 图 10-6 见附件 11.1 见附件 11.2 
 
 
 
 
附件 1.1 
 
 
附件 1.2 
 
 
附件 2.1 
 
 
附件 2.2 
 
 
附件 3.1 
 
 
附件 3.2 
 
 
附件 4.1 
 
附件 4.2 
 
附件 5.1 
 
附件 5.2 
 
附件 6.1 
 
附件 6.2 
 
附件 7.1 
 
附件 7.2 
 
附件 8.1 
 
附件 8.2 
 
附件 9.1 
 
附件 9.2 
 
附件 10.1 
 
 
附件 10.2 
 
 
 
附件 11.1 
 
 
附件 11.2

缩略图:

  • 缩略图1
  • 缩略图2
  • 缩略图3
  • 缩略图4
  • 缩略图5
当前页面二维码

广告: